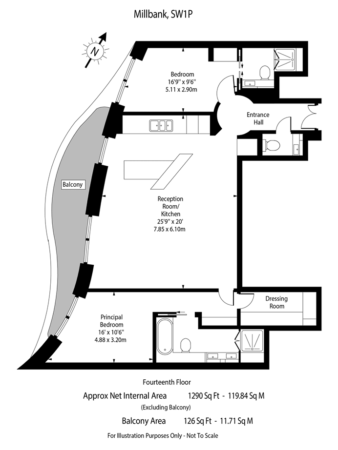
This stunning, high-floor two-bedroom apartment in the prestigious Riverwalk development is a must-see. Spanning 1,290 sq ft (120 sq m) and offered
chain-free with vacant possession, this property combines luxury, space, and modern convenience. The apartment offers the option to be sold as
turnkey, with allocated parking included.
The apartment features a spacious open-plan reception room with access to a large private balcony, ideal for relaxing or entertaining. The state-of-theart
Boffi kitchen is equipped with integrated Miele and Gaggenau appliances, while the two double bedrooms, each with built-in wardrobes, offer ample
storage. Both bathrooms are en suite and finished to a luxurious standard, and there is an additional separate washroom for added convenience.
Additional highlights include Crestron lighting, a home automation system, comfort cooling, and underfloor heating. Residents of Riverwalk enjoy
exceptional amenities, including a 24-hour concierge service, an on-site gymnasium, and a yoga studio with scenic river views.
Set on the banks of the river Thames in Westminster, Riverwalk is just a short walk from Pimlico Underground station, providing excellent access to
Central London via the Victoria Line. Don’t miss the chance to own this exceptional property.